Office To Let, Aberdeen

Office in Aberdeen
Office in Aberdeen
Office in Aberdeen
Office in Aberdeen
£7,995 / month
£95,940 pa

19 Abercrombie Court,Prospect Road, Aberdeen, AB32 6FE

Type Office
Status Under Offer
Size 3,000 - 7,995 sq ft

Key Features

  • Open plan office accommodation
  • 29 car parking spaces
  • Net Internal Area: 842.73 sq. m (7,995 sq. ft)

Property Details

Westhill is a popular satellite town located approximately 7.5 miles west of Aberdeen city centre and 6 miles south of Aberdeen International Airport. The subject property is prominently situated within Abercrombie Court, a commercial office development completed in 2012, in the heart of Arnhall Business Park which itself is widely recognised as a global centre of excellence for subsea engineering. Arnhall Business Park is easily accessible from the A944 and the B9119, providing dual carriageway access to Aberdeen. The location also benefits from easy access to the Aberdeen Western Peripheral Route (AWPR) via the Kingswells Junction, improving connectivity to the north and south of the city. Surrounding occupiers include Enpro Subsea, Decom North Sea, Global Underwater Hub, Borr Drilling, Subsea 7, TotalEnergies, Proserv and Boskalis. There are also excellent amenities within the close proximity including a Starbucks drive-thru, McDonald's, Tesco, Costco, Hampton by Hilton, Holiday Inn and Westhill Shopping Centre where a number of local and national retailers can be found including M&S Food, Costa and Subway.

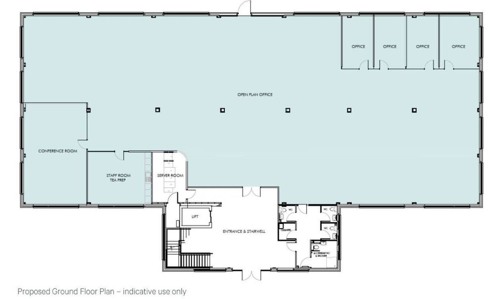
The Subjects Comprise The Ground Floor Of A Modern Three Storey, Detached Office Building Of Steel Frame Construction Which Is Externally Clad In Brickwork And Metal Cladding. Internally, The Office Accommodation Presents Well And Is Currently A Mix Of Open Plan Accommodation With A Large Boardroom And Several Other Meeting Rooms. The Suite Also Benefits From A Tea Prep Area And Communal Male, Female And Accessible Wc And Shower. The Ground Floor Suite Is Available As A Whole Or There Is Potential To Sub-divide The Suite Further To Accommodate Smaller Requirements. Further Information Is Available On Request.
Graham & Sibbald-Aberdeen
Graham & Sibbald-Aberdeen View all properties
Office To Let, Aberdeen
£7,995 / month
£95,940 pa

19 Abercrombie Court,Prospect Road, Aberdeen, AB32 6FE

Office · Under Offer · 3,000 - 7,995 sq ft

Property ID: 114374

Send Enquiry
Graham & Sibbald-Aberdeen
Graham & Sibbald-Aberdeen View all properties

Make an Enquiry

Boxpod will only use your details to send an enquiry to the advertiser and prompt a response. By clicking Send Enquiry, you agree to Boxpod's Privacy Policy.

Make an Enquiry

Graham & Sibbald-Aberdeen
Graham & Sibbald-Aberdeen

Boxpod will only use your details to send an enquiry to the advertiser and prompt a response. By clicking Send Enquiry, you agree to Boxpod's Privacy Policy.

Call