Back to results

Industrial Unit For Sale, Skelmersdale

Industrial Unit in Skelmersdale
Industrial Unit in Skelmersdale
£599,950 Freehold

Unit 1 Greetby Place, Skelmersdale, WN8 9UL

Type Industrial Unit
Status Check Availability
Size 7,000 sq ft

Key Features

  • Currently Producing £54,000 Per Annum
  • (potential to rise to £72,000 once owner occupier vacates on sale)
  • Approx 6,800 Square Feet GIA.
  • No VAT on Purchase Price.
  • Ideal SIPP / Investment Purchase/Part Owner Occupier with Income.
  • Parking spaces for 20 - 25 cars
  • Roller shutters on all external doors and windows

Property Details

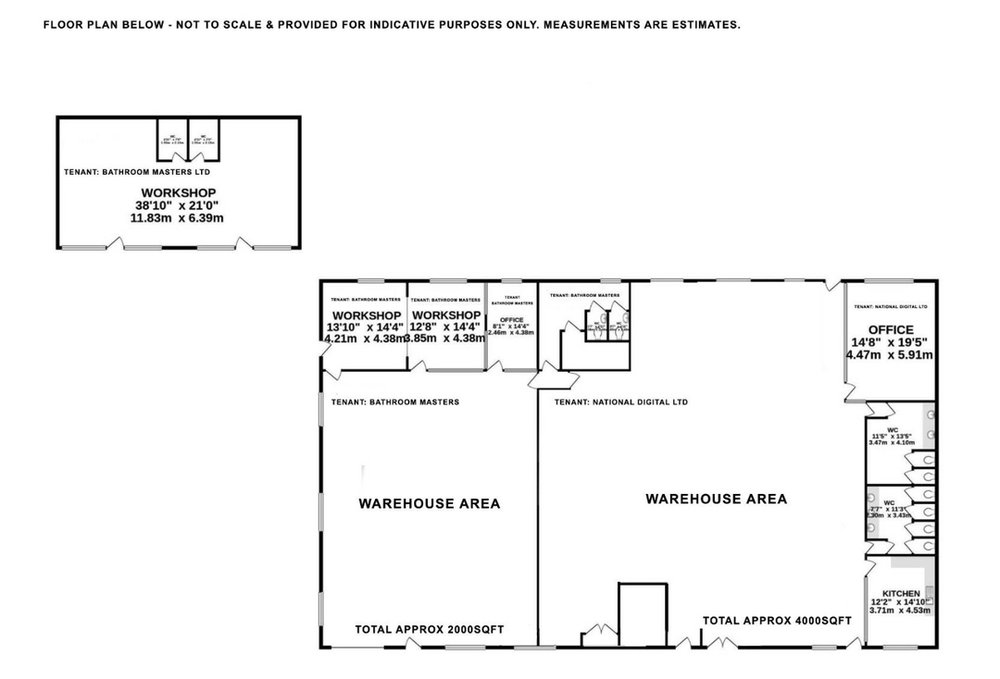
The property comprises of a (1a) detached, newly constructed workshop unit with roller double shutter doors leading into the open plan workshop areas beyond, together with a gated car park. 810sqft. Adjacent to this is the original warehouse, which is part-brick, part-profile cladding elevations, security roller shutters to all windows and roller shutter entry doors. This unit has been split into two (1b which is approx. 2,000sqft) and (1c which is approx. 4,000sqft). Each unit has an open plan warehouse space and each has an office and suspended ceilings. Approx 22-25 car parking spaces. Freehold property. Property is sold subject to and with the benefit of the following tenancy Bathroom Masters Ltd - New Workshop (1a) & 2000sqft warehouse (1b) - 36-month tenancy from 5th May 2021, £2,500 per month. Services The property consists of gas, water and electric mains supply and fibre internet cabling installed.
Industrial Unit For Sale, Skelmersdale
£599,950 Freehold

Unit 1 Greetby Place, Skelmersdale, WN8 9UL

Industrial Unit · Check Availability · 7,000 sq ft

Property ID: 116450

Send Enquiry

Make an Enquiry

Boxpod will only use your details to send an enquiry to the advertiser and prompt a response. By clicking Send Enquiry, you agree to Boxpod's Privacy Policy.

Make an Enquiry

Boxpod will only use your details to send an enquiry to the advertiser and prompt a response. By clicking Send Enquiry, you agree to Boxpod's Privacy Policy.

Call