Retail/Shop To Let, Market Harborough
3 photos
POA
Drive Thru Unit,Harrison Road Off Leicester Road, Market Harborough, LE16 7WB
Type
Retail/Shop
Status
Available
Size
2,300 sq ft
Key Features
- Prominent Location
- To be provided once complete
- Available on new full repairing and insuring lease terms for a term of years to be agreed
Property Details
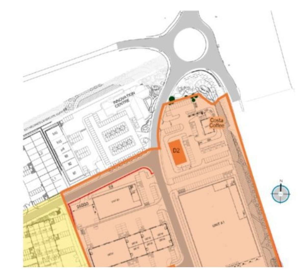
New Build Drive Thru Unit Adjacent To Costa Coffee On Established Business Park.
Exact Design And Specification Of The Unit To Be Agreed With The Operator.
The Layout Of The Wider Scheme Has Been Designed And Forms Part Of A Planning Application Reference No 2024/reg3ma/0015/lcc
Exact Design And Specification Of The Unit To Be Agreed With The Operator.
The Layout Of The Wider Scheme Has Been Designed And Forms Part Of A Planning Application Reference No 2024/reg3ma/0015/lcc
Location
Eddisons; Kettering
View all properties
Make an Enquiry
Eddisons; Kettering