Back to results

Industrial Unit To Let, Doncaster

Industrial Unit in Doncaster
Industrial Unit in Doncaster
Industrial Unit in Doncaster
Industrial Unit in Doncaster
£1,500 / month
£18,000 pa

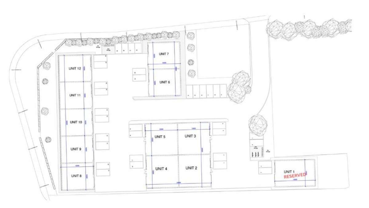
Unit 7 & 9,Hayfield Lane / First Avenue, Doncaster, DN9 3PL

Type Industrial Unit
Status Available
Size 1,291 - 2,207 sq ft

Key Features

  • NEW High quality business units
  • Adjacent to the Airport
  • Unit 7 with Mezanine total 205 m2 (2,206 ft2)
  • Unit 9 - 120 m2 (1,291 ft2)
  • 4m roller shutter door
  • Ridge height: 8m - Eaves height: 5.44m,
  • Secure site
  • Visitor & accessible parking & cycle storage

Property Details

Olympus Business Park Is A Development Of Twelve New High-quality Units Of Duo Steel Frame Construction, With Full Height Factory Finished Steel Cladding Complete With Angled Fascia And Soffits With:-
Roller Shutter Doors
Glazed Front Entrance
Fire Alarm
And Emergency Lighting,
External Led Lighting To The Service Yard

Unit 7
Mezzanine Floor
Full Fibre Broadband.
Security Alarm
Cctv
Note 1 The Solar Panels On The Roof Are Excluded As They Serve The Adjacent Unit.
Note 2 Areas Provided By Client And Not Verified.


Unit 9
A Shell Ready For Fit Out
Craven Wildsmith Ltd
Craven Wildsmith Ltd View all properties
Industrial Unit To Let, Doncaster
£1,500 / month
£18,000 pa

Unit 7 & 9,Hayfield Lane / First Avenue, Doncaster, DN9 3PL

Industrial Unit · Available · 1,291 - 2,207 sq ft

Property ID: 126812

Send Enquiry
Craven Wildsmith Ltd
Craven Wildsmith Ltd View all properties

Make an Enquiry

Boxpod will only use your details to send an enquiry to the advertiser and prompt a response. By clicking Send Enquiry, you agree to Boxpod's Privacy Policy.

Make an Enquiry

Craven Wildsmith Ltd
Craven Wildsmith Ltd

Boxpod will only use your details to send an enquiry to the advertiser and prompt a response. By clicking Send Enquiry, you agree to Boxpod's Privacy Policy.

Call