Industrial Unit For Sale, Peterborough
4 photos
POA
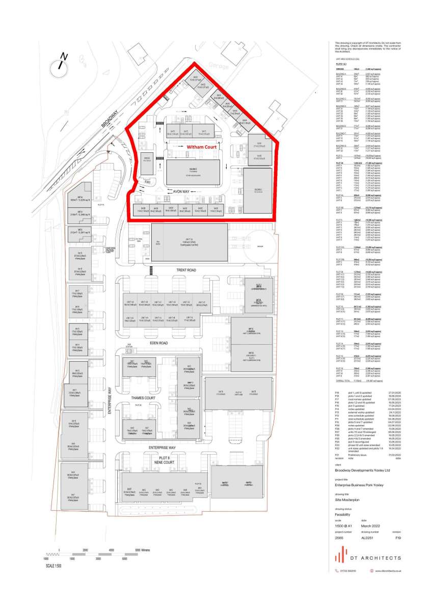
Witham Court, Peterborough, PE7 3WY
Type
Industrial Unit
Status
Available
Size
635 - 4,000 sq ft
Key Features
- Located within popular Yaxley Development
- High Quality Specification
- Three Phase Power & Full Fibre Connection
- Available November 2025
- Units will be available towards the end of 2025.
Property Details
The site has direct access to Broadway and is located 3 miles from J16 of the A1(M) at Norman Cross with access to the Parkway dual carriageway road system around Peterborough which is approximately 2 miles to the northeast.
The site is serviced by a main bus route and is adjacent to the recently developed Eagle Business Park.
A New Industrial / Warehouse Development Situated On Broadway In Yaxley With A Current Total Of 46 Units. Witham Court Is The Final Phase Of The Development At Enterprise Park With Unit Sizes Ranging From 656 - 4,000 Sq Ft. The Units Will Have The Following :-
Steel Portal Frame Construction.
Each Unit Has An Office And Toilet.
Led Lighting.
Electric Loading Doors.
Car Parking.
Fibre Connection.
Available November 2025
The site is serviced by a main bus route and is adjacent to the recently developed Eagle Business Park.
A New Industrial / Warehouse Development Situated On Broadway In Yaxley With A Current Total Of 46 Units. Witham Court Is The Final Phase Of The Development At Enterprise Park With Unit Sizes Ranging From 656 - 4,000 Sq Ft. The Units Will Have The Following :-
Steel Portal Frame Construction.
Each Unit Has An Office And Toilet.
Led Lighting.
Electric Loading Doors.
Car Parking.
Fibre Connection.
Available November 2025
Location
Eddisons; Peterborough
View all properties
Make an Enquiry
Eddisons; Peterborough