Retail/Shop To Let, Fareham
4 photos
POA
Fareham Retail Parade, Fareham, PO16 0PQ
Type
Retail/Shop
Status
Available
Size
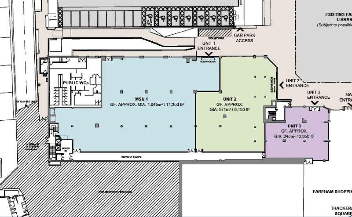
2,650 - 11,250 sq ft
Key Features
- Unit configurations available to suit occupier requirements
- Suitable for Retail and F&B uses
- Opposite new 136 space surface car park
- Servicing from share 1st floor dedicated loading bays
Property Details
Fareham Shopping Centre Is Located In The Heart Of Fareham And Adjacent To A New 136 Space Surface Car Park.
The Centre Is Surrounded By National Retail Occupiers, With Civic And Nhs Offices In Proximity Providing A Large Demographic Of Office Workers, Offering The Chance To Be Part Of An Ongoing Significant Investment With Plans For Future Regeneration.
The Centre Is Surrounded By National Retail Occupiers, With Civic And Nhs Offices In Proximity Providing A Large Demographic Of Office Workers, Offering The Chance To Be Part Of An Ongoing Significant Investment With Plans For Future Regeneration.
Location
Vail Williams
View all properties
Make an Enquiry
Vail Williams