Land To Let, Tavistock

Land in Tavistock
Land in Tavistock
Land in Tavistock
POA

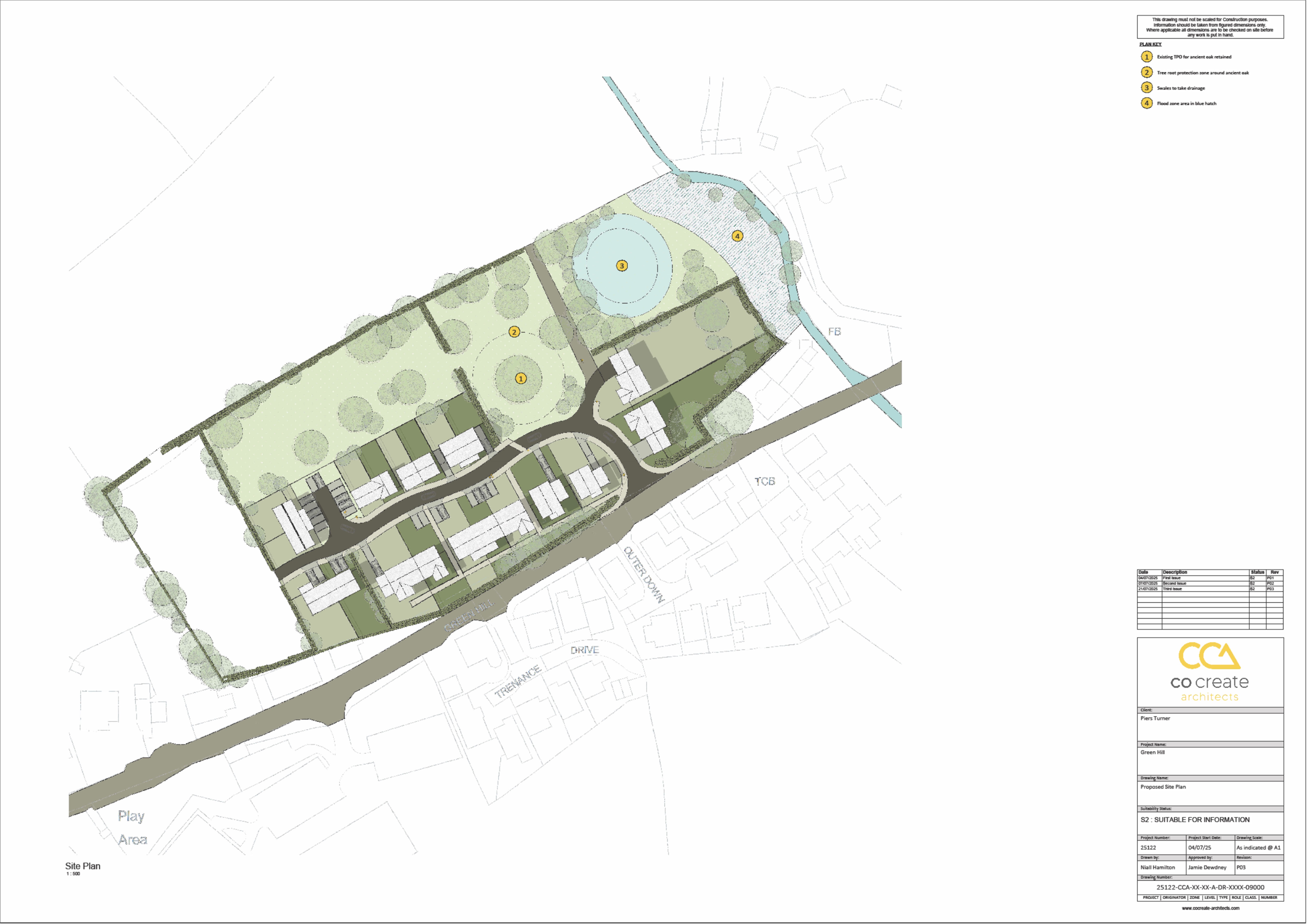
Land at Green Hill, Tavistock, PL19 8QP

Type Land
Status Check Availability
Size 3.80 Acres

Key Features

  • Planning permission for 15 dwellings plus 4 self build plots
  • Edge of village location
  • Easy walking distance of the popular Blacksmiths Arms
  • Gentle sloping site
  • Mix of open market and affordable dwellings

Property Details

This freehold parcel of approximately 1.539 hectares (c. 3.803 acres) of sloping greenfield pasture lies on the northern edge of Lamerton village. The site has planning permission for a mixed development of 15 open market and affordable dwellings, together with four self build plots. The 15 plots are being offered for sale, following which the four self build plots will be sold.

The site benefits from an outline planning consent (Ref 0107/22/OPA), permitting up to 19 residential dwellings, with all matters reserved except for access (which has been granted in principle). The property is offered with vacant possession and full freehold title.
Ward Chowen Commercial
Ward Chowen Commercial View all properties
Land To Let, Tavistock
POA

Land at Green Hill, Tavistock, PL19 8QP

Land · Check Availability · 3.80 Acres

Property ID: 146523

Send Enquiry
Ward Chowen Commercial
Ward Chowen Commercial View all properties

Make an Enquiry

Boxpod will only use your details to send an enquiry to the advertiser and prompt a response. By clicking Send Enquiry, you agree to Boxpod's Privacy Policy.

Make an Enquiry

Ward Chowen Commercial
Ward Chowen Commercial

Boxpod will only use your details to send an enquiry to the advertiser and prompt a response. By clicking Send Enquiry, you agree to Boxpod's Privacy Policy.

Call