Office To Let, Gloucester

Office in Gloucester
Office in Gloucester
Office in Gloucester
£2,729 / month
£32,748 pa

Conway House, Gloucester, GL1 3AJ

Type Office
Status Available
Size 581 - 861 sq ft

Property Details

Base Your Business At Conway House And Enjoy Inspiring Views Of Gloucester Cathedral. Stroll To Your Office From The Train Station In Five Minutes. Work In Abundant Natural Light From The Large Windows, And Get A Fresh Perspective In The Comfortable Lounge Area And Breakout Space.
Enjoy A Lunchtime Wander Around Gloucester Docks, With Its Historic Dock Buildings And Waterside Views. Take Your Pick Of After-work Hangouts, With Gloucester City Centre Right On Your Doorstep.

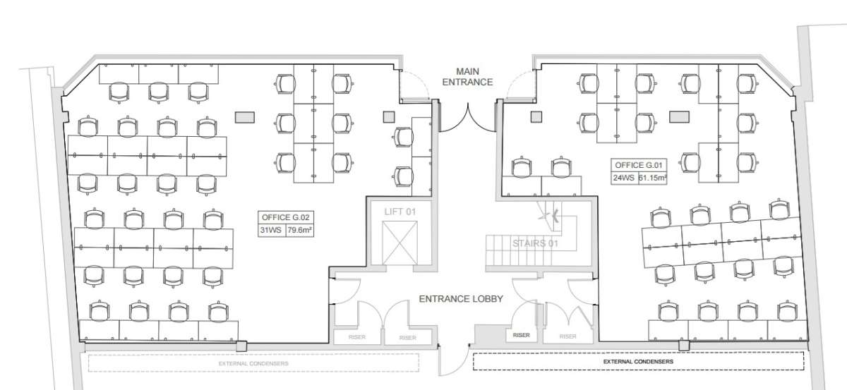
Ground Floor
G01 & G02 Suites Available

* G01 54sqm / 21 Workstations / £2729 / Month
* G02 80sqm / 30 Workstations / £3589 / Month
* Available Together Or Separately
* Attached Floorplan

* Business Rates And Utilities Included
* Business Grade Telecoms Included

* Own Front Doors To Streetside

* A Wide Choice Of Parking Options From Free On-road Nearby, Reservable On-site Or £3/day In Council Parking
* Full Printing, Photocopying, Scanning And Shredding At Reception, Plus Post Franking Facilities

* Free Fully Manned Reception Services
* Free All Mail And Deliveries Handling
* Free Daily Royal Mail Post Collections
* Free Companies House Main Address

* Free Business Grade 1gb Www/wifi
* Free Voip Telephone Compatibility
* Free Maintenance And Compliance
* Free H&s / F&s Recording And Log

* Free Bespoke Office Design And Furniture
* Free Business Rates And Council Taxes
* Free Daily In-office Cleaning Service

* Free Utilities, Electricity, Gas - And Full Aircon
* Free Meeting Room Use 2 Hours Every Day
* Free Oomer Telephone Voip System
* Free 01452 Telephone Numbers

* Free 24/7 Access
* Free Recycling
* Free Events

* Free Annual Bupa Health Check And Two Day Passes Every Week To Any Hussle Gym, Pool Or Spa - For All Your Office Users

* Free Use Of Coffee Bars, Business Lounges, Acoustic And Interview Pods, And Community Meeting Room Free Two Hours Every Day Plus Board Rooms, Fully Equipped Training Rooms And Presentation Rooms For Hour-hire

* Free 'my Regus' Phone App For All Office Users To See And Use Free Our Uk And International Lounge Locations And Meeting Rooms, And Book Space Elsewhere Across The Area, Uk And World

* Free Use Of 400+ Iwg Centre Business Lounges Across The Uk And 3,400+ Worldwide (0830 To 1730 Monday To Friday) And 10% Discount On All Meeting / Training Rooms / Day Offices Booked In Them

* Full Carbon-neutral And Green Status - Becoming Ever More Important For Hmg, Lg, Major Contract Pitches, Website Credentials And Corporate Social Responsibility Statements
Bruton Knowles
Bruton Knowles View all properties
Office To Let, Gloucester
£2,729 / month
£32,748 pa

Conway House, Gloucester, GL1 3AJ

Office · Available · 581 - 861 sq ft

Property ID: 148554

Send Enquiry
Bruton Knowles
Bruton Knowles View all properties

Make an Enquiry

Boxpod will only use your details to send an enquiry to the advertiser and prompt a response. By clicking Send Enquiry, you agree to Boxpod's Privacy Policy.

Make an Enquiry

Bruton Knowles
Bruton Knowles

Boxpod will only use your details to send an enquiry to the advertiser and prompt a response. By clicking Send Enquiry, you agree to Boxpod's Privacy Policy.

Call