Office For Sale, Falmouth
3 photos
£350,000 Freehold
11-12 Killigrew Street, Falmouth, TR11 3RA
Type
Office
Status
Available
Size
3,914 sq ft
Property Details
Falmouth Town Centre Commercial Freehold Opportunity
Situated In The Desirable The Moor Area Near To Loungers, Wetherspoons, Tesco, Boo Koos
Tenant Break Notice Received To End The Lease September 2026
Prominent Position With High Visibility
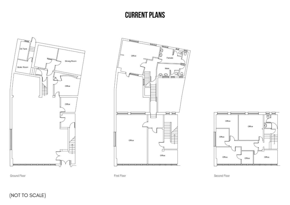
Net Internal Area: 363.66 Sq M (3,914 Sq Ft)
Ground, First And Second Floors
Situated In The Desirable The Moor Area Near To Loungers, Wetherspoons, Tesco, Boo Koos
Tenant Break Notice Received To End The Lease September 2026
Prominent Position With High Visibility
Net Internal Area: 363.66 Sq M (3,914 Sq Ft)
Ground, First And Second Floors
Location
Scott Burridge Commercial LLP
View all properties
Make an Enquiry
Scott Burridge Commercial LLP