Retail/Shop To Let, Grantham
4 photos
£792 / month
£9,500 pa
31 Market Place, Grantham, NG31 6LR
Type
Retail/Shop
Status
Available
Size
58 - 59 sq ft
Key Features
- Well located on the corner Market Place and Westgate in the Town centre
- Suitable for a variety of uses covered under Use Class E
- Premises available by way of a new effective FRI lease
- A Minimum of 3 years
- NIA appox. 632 Sq. Ft (58.7 Sq. M).
Property Details
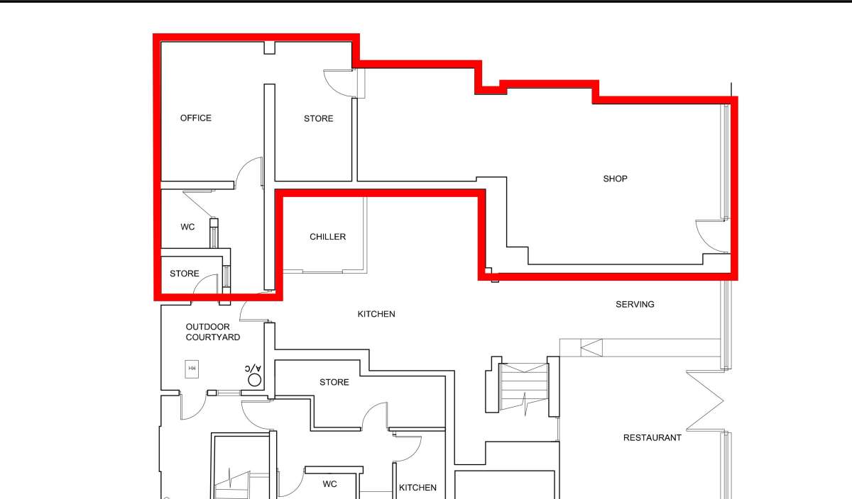
The property comprises a mid-terraced Ground Floor Retail Unit. Internally, the property comprises a Sales Area to the front with a Store, Office/Kitchen and an external WC to the rear. The Sales Area benefits from suspended ceilings with inset lighting and laminate flooring.
Well Located On The Corner Market Place And Westgate In The Town Centre
Suitable For A Variety Of Uses Covered Under Use Class E
Premises Available By Way Of A New Effective Fri Lease
A Minimum Of 3 Years
Town Centre Retail Unit
31 Market Place, Grantham Ng31 6lr
£9,500 P.a.x. Leasehold| 58.7 Sq. M (632 Sq. Ft)
Town Centre Retail Unit
31 Market Place, Grantham Ng31 6lr
£9,500 P.a.x. Leasehold| 58.7 Sq. M (632 Sq. Ft)
Detailed Description
The Property Comprises A Mid-terraced Ground Floor Retail Unit. Internally, The Property Comprises A Sales Area To The Front With A Store, Office/kitchen And An External Wc To The Rear. The Sales Area Benefits From Suspended Ceilings With Inset Lighting And Laminate Flooring.
Location
Grantham Is An Established Market Town In South Lincolnshire Being Approximately 23 Miles East Of Nottingham And 25 Miles South Of Lincoln And Having A Residential Population Of Approximately 38,000 People With A Large Catchment Area. The A1 Runs Immediately To The West Of The Town Providing Excellent Road Communications And The Town Also Benefits From A Main Line Rail Connection To London Kings Cross With A Journey Time Of Approximately 75 Minutes.
The Property Comprises A Mid-terraced Ground Floor Retail Unit Situated On Market Place Within Grantham Town Centre.
Nia Appox. 632 Sq. Ft (58.7 Sq. M).
Well Located On The Corner Market Place And Westgate In The Town Centre
Suitable For A Variety Of Uses Covered Under Use Class E
Premises Available By Way Of A New Effective Fri Lease
A Minimum Of 3 Years
Town Centre Retail Unit
31 Market Place, Grantham Ng31 6lr
£9,500 P.a.x. Leasehold| 58.7 Sq. M (632 Sq. Ft)
Town Centre Retail Unit
31 Market Place, Grantham Ng31 6lr
£9,500 P.a.x. Leasehold| 58.7 Sq. M (632 Sq. Ft)
Detailed Description
The Property Comprises A Mid-terraced Ground Floor Retail Unit. Internally, The Property Comprises A Sales Area To The Front With A Store, Office/kitchen And An External Wc To The Rear. The Sales Area Benefits From Suspended Ceilings With Inset Lighting And Laminate Flooring.
Location
Grantham Is An Established Market Town In South Lincolnshire Being Approximately 23 Miles East Of Nottingham And 25 Miles South Of Lincoln And Having A Residential Population Of Approximately 38,000 People With A Large Catchment Area. The A1 Runs Immediately To The West Of The Town Providing Excellent Road Communications And The Town Also Benefits From A Main Line Rail Connection To London Kings Cross With A Journey Time Of Approximately 75 Minutes.
The Property Comprises A Mid-terraced Ground Floor Retail Unit Situated On Market Place Within Grantham Town Centre.
Nia Appox. 632 Sq. Ft (58.7 Sq. M).
Location
Brown & Co
View all properties
Make an Enquiry
Brown & Co