Industrial Unit For Sale, Haywards Heath
4 photos
POA
Tungsten Park, Haywards Heath, RH17 6BA
Type
Industrial Unit
Status
Sold
Size
10,000 - 40,000 sq ft
Property Details
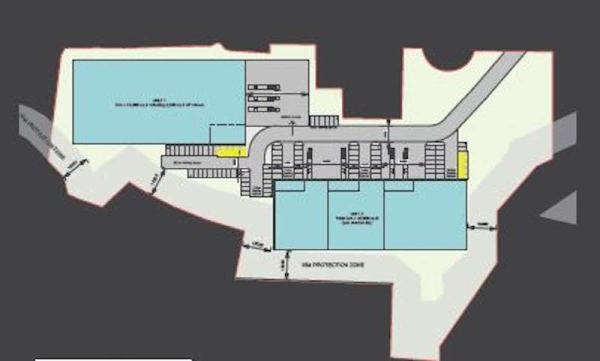
Two New Units To Be Constructed And Ready For Occupation Q3 2018. Unit 1 Extends To 4,000 Sq M (43,000 Sq Ft) And Is Available As A Whole Unit. Unit 2 Extends To 3,800 Sq M (40,960 Sq Ft) And Is Available As A Whole Or In Part From 1,208 Sq M (13,000 Sq Ft) Upwards. The Units Will Built To Institutionally Acceptable Design And Specification As Follows: • 8m Clear Height To Underside Of Haunch • 50 Kn/m2 Warehouse Floor Loading • Unit 1 - 3 X Loading Doors • Unit 2 - 4 X Loading Doors • Ample Onsite Car Parking • Good Loading / Hgv Circulation • Institutional Standard Steel Frame & Clad Construction • Landscaped Surrounds • Potential For Creating Secure Yards • Units Divisable From 1,208 Sq M (13,000 Sq Ft)
Location
Vail Williams
View all properties
Make an Enquiry
Vail Williams