Office To Let, Oakham

Office in Oakham
Office in Oakham
Office in Oakham
Office in Oakham
£250 / month
£3,000 pa

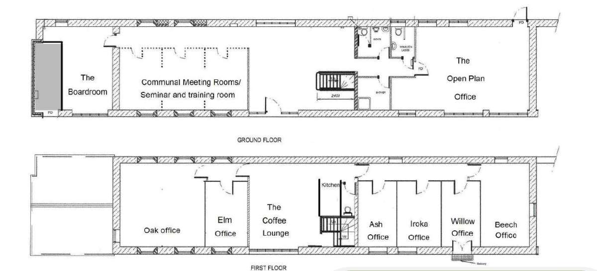
Iroka Office Seaton Grange,Grange Lane, Oakham, LE15 9HT

Type Office
Status Available
Size 119 sq ft

Key Features

  • Rural Business Centre
  • Incentives avaliable
  • Heating, electric and broadband included.
  • Flexible Lease Terms
  • Meeting Room facility
  • Wi-Fi, data cabling and telecoms
  • 1.5 miles off the A47
  • SAT NAV: LE15 9HT

Property Details

Iroka office is a first floor suite set within a converted iron stone barn which enjoys panoramic views over open countryside and landscaped garden. Located in the Rutland village of Seaton with easy access to the road network A43, A47 and A1 and the nearby towns of Oakham, Uppingham and Stamford.

Description

Seaton Grange Offices Are Set Within A Converted Stone Built Barn, Constructed And Maintained To A Very High Specification. The Offices Are Arranged Over Two Floors And Benefit From Perimeter Trunking, Cat Ii Lighting, Feature Wall Lighting, Shower Facilities, Attractive Reception Area, Use Of A Communal Kitchen And Meeting Room Space. Heating Is Provided To Seaton Grange Via Ground Source Heat Pump. Car Parking Is Also Also Available In Close Proximity To The Property With An Attractive Lunch Time Seating Area Ideal For The Summer Months.

Location

Iroka Office Is A First Floor Suite Set Within A Converted Iron Stone Barn Which Enjoys Panoramic Views Over Open Countryside And Landscaped Garden. Located In The Rutland Village Of Seaton With Easy Access To The Road Network A43, A47 And A1 And The Nearby Towns Of Oakham, Uppingham And Stamford.

Accommodation

The Office Has Been Measured In Accordance With The Rics Code Of Measuring Practice On A Net Internal Area (nia) Basis And Measures 119 Sq. Ft. (11.6 Sq. M)

Each Party To Bear Their Own Legal Costs.

Epc

The Seaton Grange Office Building Has An Epc Rating Of B (44). A Copy Of The Certificate Is Available Upon Request.
Wells McFarlane
Wells McFarlane View all properties
Office To Let, Oakham
£250 / month
£3,000 pa

Iroka Office Seaton Grange,Grange Lane, Oakham, LE15 9HT

Office · Available · 119 sq ft

Property ID: 74523

Send Enquiry
Wells McFarlane
Wells McFarlane View all properties

Make an Enquiry

Boxpod will only use your details to send an enquiry to the advertiser and prompt a response. By clicking Send Enquiry, you agree to Boxpod's Privacy Policy.

Make an Enquiry

Wells McFarlane
Wells McFarlane

Boxpod will only use your details to send an enquiry to the advertiser and prompt a response. By clicking Send Enquiry, you agree to Boxpod's Privacy Policy.

Call