Back to results

Retail/Shop To Let, Glasgow

Retail/Shop in Glasgow
Retail/Shop in Glasgow
£1,667 / month
£20,000 pa

Gallowgate, Glasgow, G31 4EB

Type Retail/Shop
Status Available
Size 1,044 sq ft

Key Features

  • Popular Merchant City location
  • Class 2 (Office) consent
  • New FRI lease available

Property Details

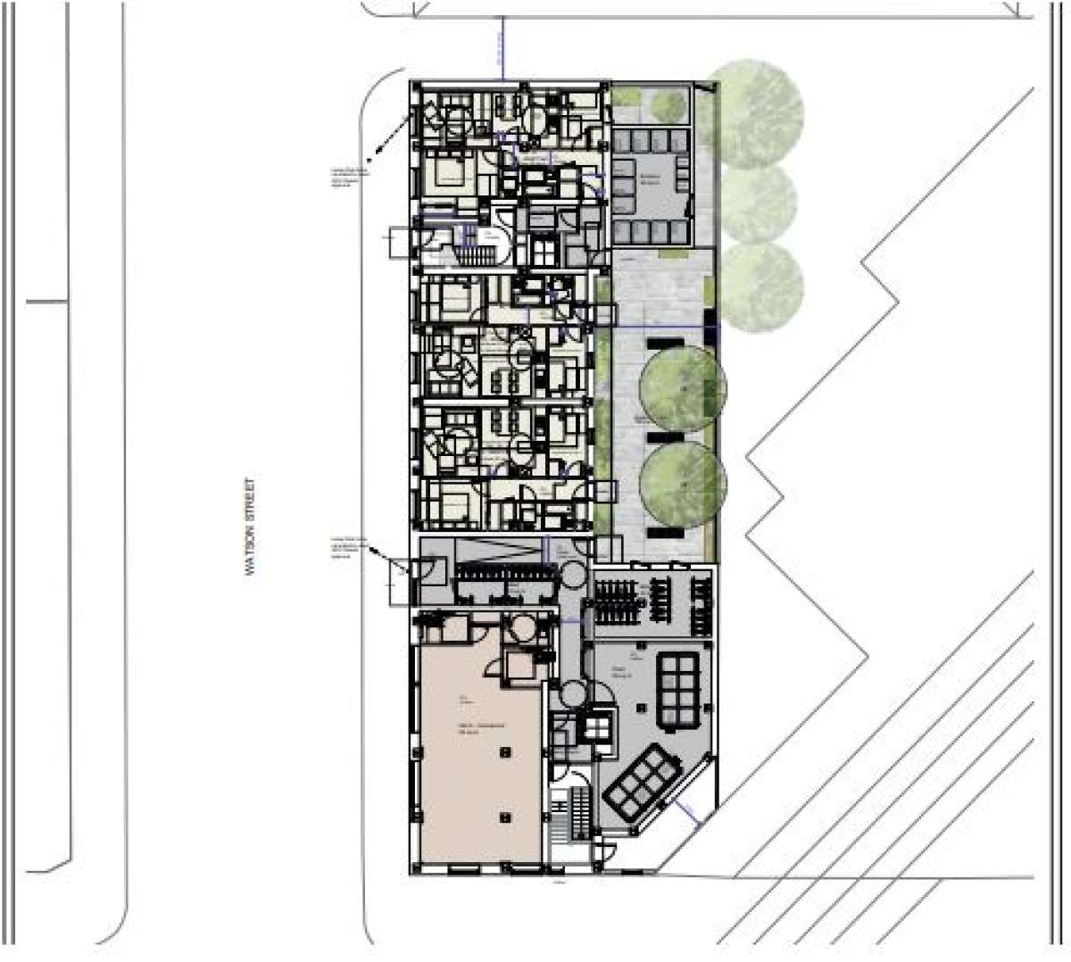
The subjects are located in Glasgow's Merchant City, on the north side of Gallowgate, at its junction with Watson Street. This area of the city has a large mix of retail, food & beverage and service based occupiers which cater to the large city centre resident population.

The subjects are adjacent to a number of national and local traders including, Dominos, Tesco, Subway, Maggie Mays and many others.

The Subjects Comprise A New Build Ground Floor Only Commercial Unit Forming Part Of A Larger New Build Residential Development Totalling 46 Units. The Unit Benefits From An Extensive Frontage On Gallowgate And A Return Frontage To Watson Street.

The Unit Is To Be Provided In A Shell Condition Ready For An Ingoing Tenant To Fit-out. Exact Details Can Be Obtained From The Letting Agents.
Graham & Sibbald-Glasgow
Graham & Sibbald-Glasgow View all properties
Retail/Shop To Let, Glasgow
£1,667 / month
£20,000 pa

Gallowgate, Glasgow, G31 4EB

Retail/Shop · Available · 1,044 sq ft

Property ID: 98407

Send Enquiry
Graham & Sibbald-Glasgow
Graham & Sibbald-Glasgow View all properties

Make an Enquiry

Boxpod will only use your details to send an enquiry to the advertiser and prompt a response. By clicking Send Enquiry, you agree to Boxpod's Privacy Policy.

Make an Enquiry

Graham & Sibbald-Glasgow
Graham & Sibbald-Glasgow

Boxpod will only use your details to send an enquiry to the advertiser and prompt a response. By clicking Send Enquiry, you agree to Boxpod's Privacy Policy.

Call